AIFI
2 Bedrooms I Holiday Let
Creating amazing spaces and experiences
Aifi
Every Centimetre A Log Cabin
Imagine you are on holiday in the Alps and returning to your log cabin for the evening, you light the fire and settle down for the evening with a glass of wine perhaps?
The home you are imagining could be Aifi - it's a stereo-typical log cabin, with traditional round logs, a welcoming verandah to make use of those evenings when you can sit outside to enjoy the view.
Inside its cute and cosy, perfect as a holiday let, small and easy to maintain, it will quickly recoup its investment, log homes being amongst the fastest growing holiday lets in the sector.
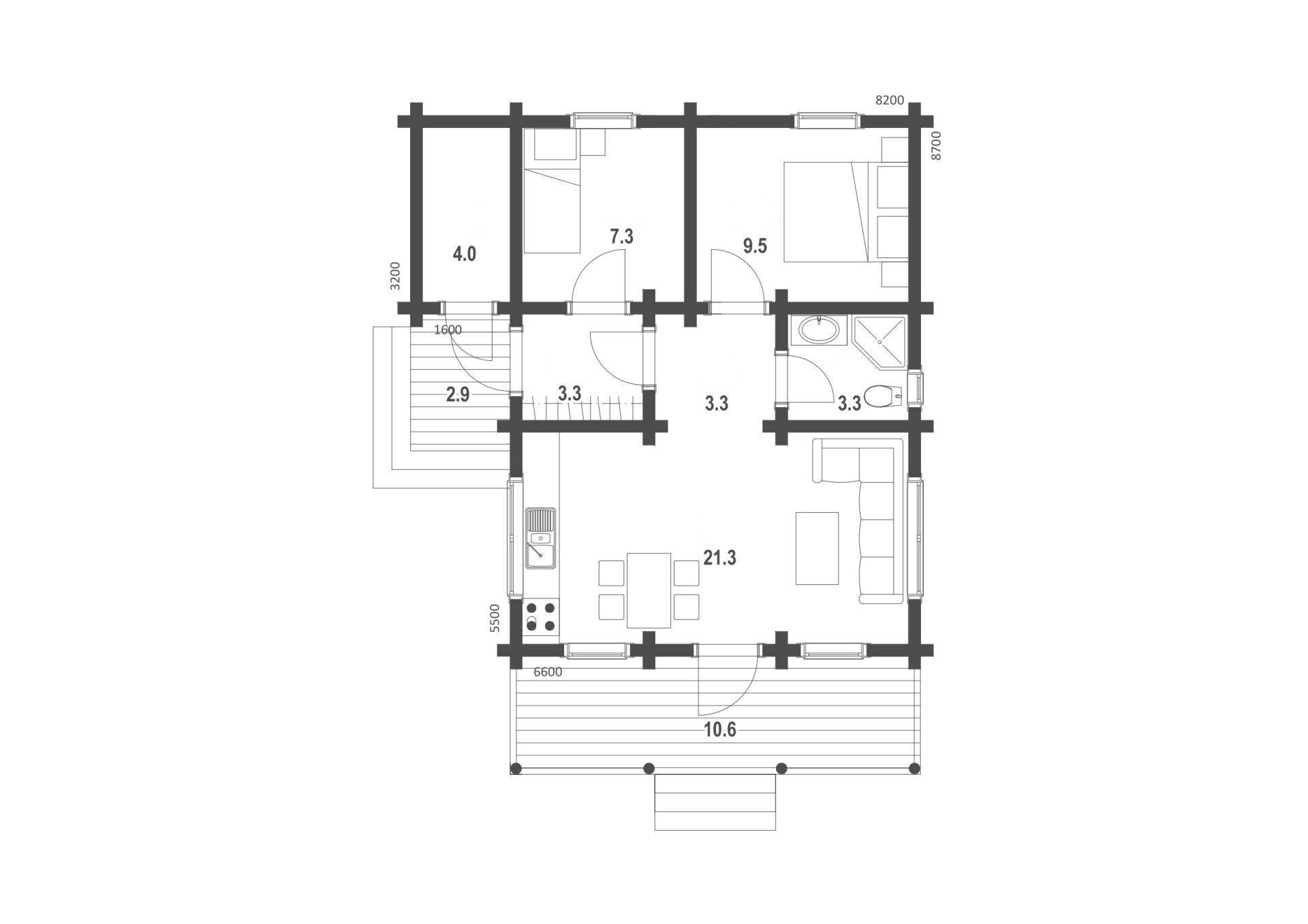
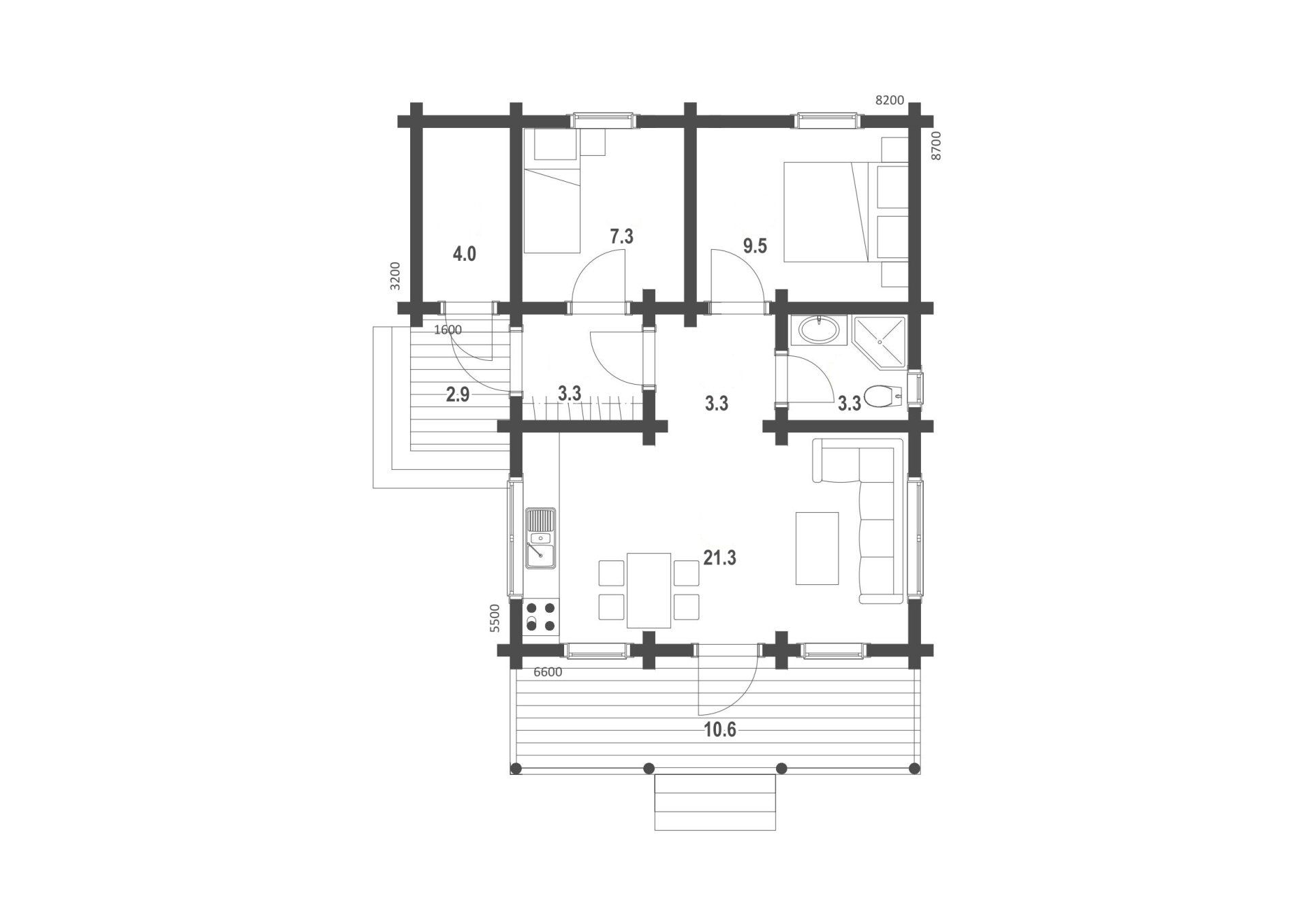
Aifi - Floors 1 I 52 m2 I Entrance Hall I Kitchen & Dining Area I Lounge I 2 Beds I Bathroom 1 I Terrace 13.5 m2 I Ext Store
Ground Floor Plans (clockwise from top left)
- External Store
- Single Bedroom
- Double Bedroom
- Bathroom
- Lounge
- Dining
- Kitchen
- Entrance Vestibule
At 52 square metres we cannot claim Aifi to be spacious but it has a simple layout and is full of charm with its round logs outside and in.
Click for larger image
Aifi as built (round logs & sedum roof / square logs)


Planning, Build, Value, Longevity & the Environment
Most buildings in our portfolio will require planning permission, if you are not familiar with the planning process then it can be something of a minefield and professional help should always be sought, to help you we have produced a handy quide which explains how the process works - click on the icon below.
Our buildings benefit from fast build times once on site - assembly takes between 1 and 5 weeks depending on the size and complexity? Unlike traditional building methods which typically take between 6 to 12 months and are dependant on the weather.
Build costs for traditional building methods range from around £2,700 per square metre to over £3,000 per square metres for a higher spec build - the costs then for a typical 4 bed home, depending on the location, will come out at around £400,000. Your log building once committed to manufacture will be fixed in price, no budgetting for cost over-runs as is the norm of conventional build methods and we will be considerably more cost-effective to build, saving you time and money!
Whilst Ritsu make use of modern processing and production methods, the basic design principles are those of log homes that have been in use of hundreds of years - tried and tested then, when we say your building should last for 100 years or more, it's based on experience, not supposition.
Finally, you will be buying a log building that is amongst the most environmentally friendly buildings available, and also, one of the healthiest environments in which to live and work.








