ALLA
3 Bedrooms I Family Home
Creating amazing spaces and experiences
Alla
The Unconventional?
Alla with its unconventional looks brings strong architectural lines to what could be your “forever” home?
As a log building Alla stretches our imagination to the full in what we believe a log building should look like.
It packs a lot into the design, a large entrance hall, two lounges, a sun room, and large outdoor decked areas to make the most of your garden and the views beyond.
Moving upstairs you will find 3 large double bedrooms including a master suite with en-suite around a large landing forming the focal core of the accommodation upstairs.
This is a stunning family home by any measure - readily connecting you to the outside with it's deck and balcony areas.
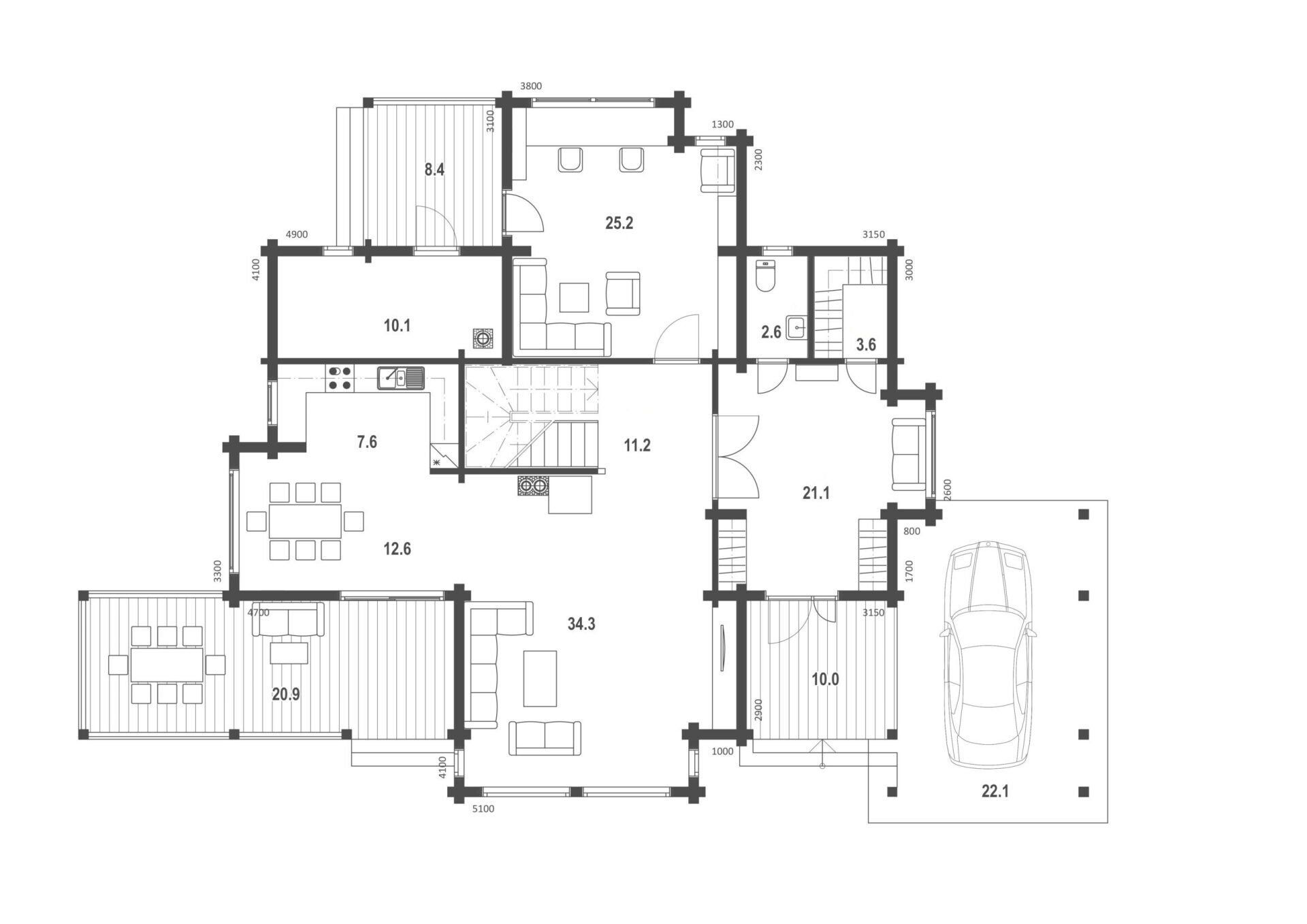
Alla- Floors 2 I 248.9 m2 I Large Entrance Hall with Cloaks I Kitchen Dining I Lounges I WC I Large Landing I Master Bed En-Suite with Balcony I 2 Beds 1 with Balcony I Family Bathroom I Ext Store I Car-Port
Ground Floor Plans (clockwise from top left)
- Sun Room
- Lounge
- WC I Cloaks I Entrance Hall
- Lounge
- Dining Room
- Kitchen
Click for larger image
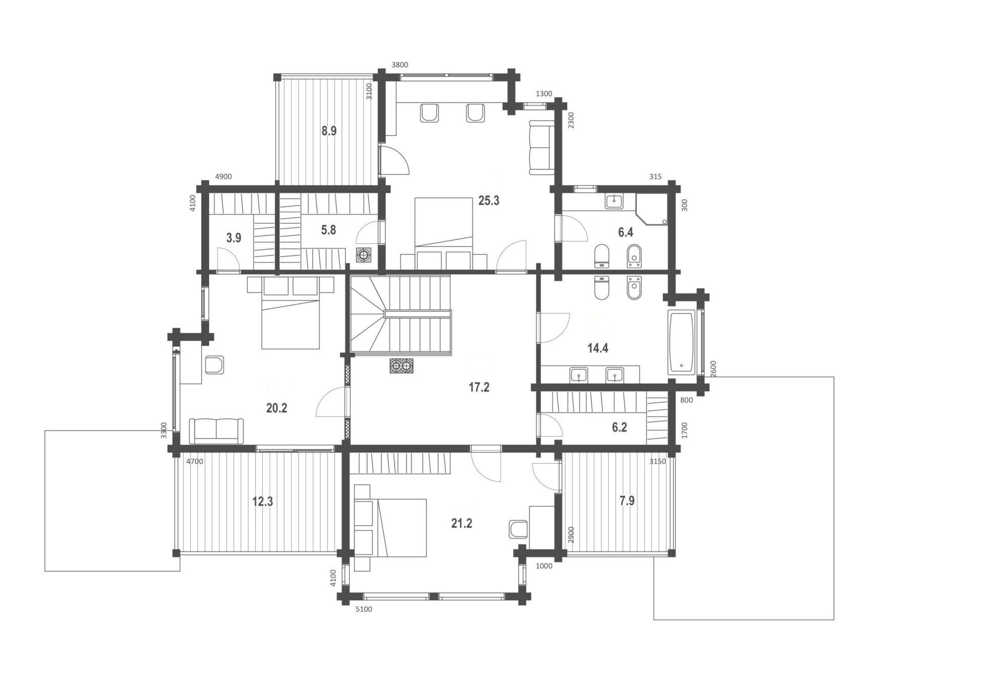
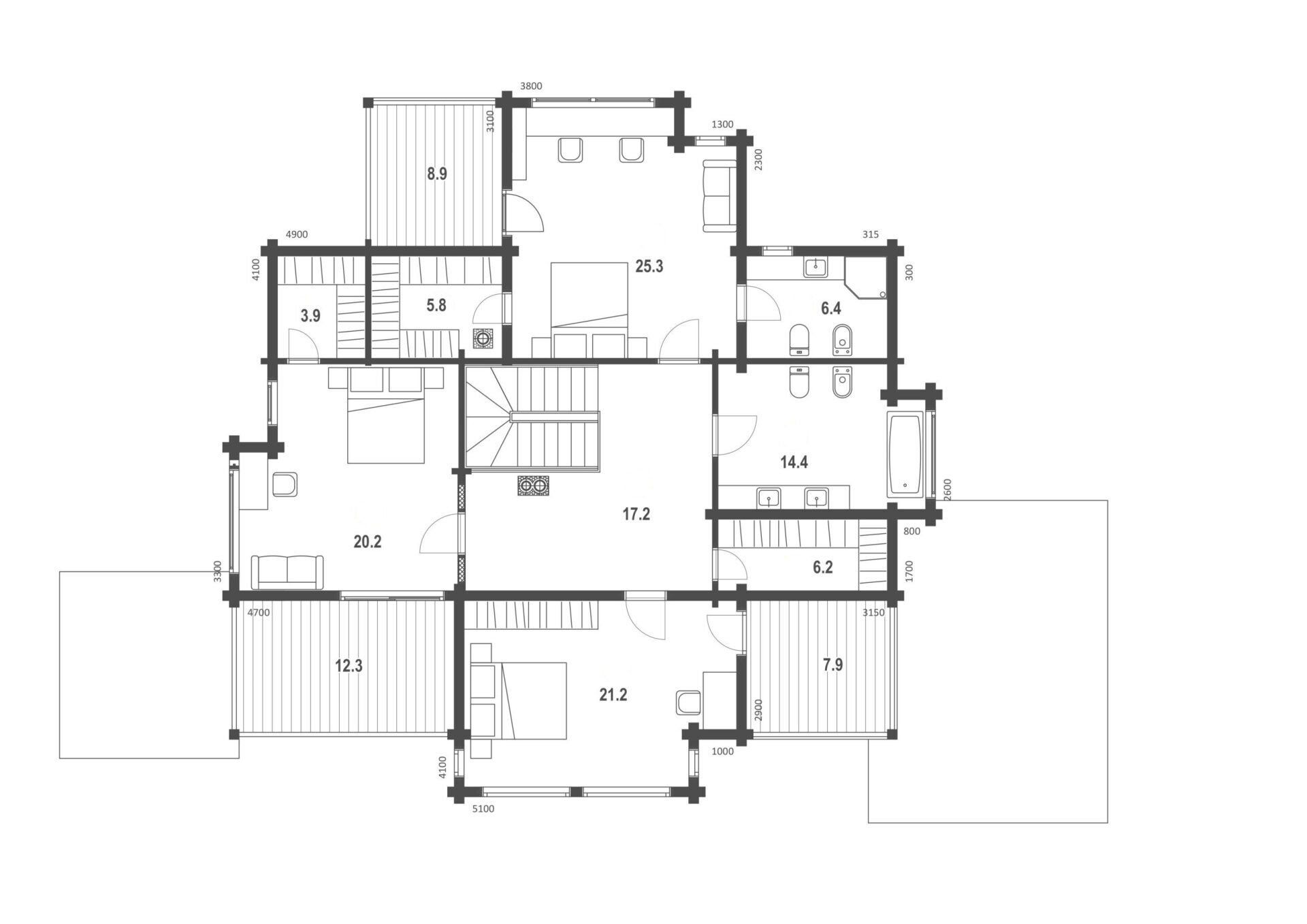
Alla- Floors 2 I 248.9 m2 I Large Entrance Hall with Cloaks I Kitchen Dining I Lounges I WC I Large Landing I Master Bed En-Suite with Balcony I 2 Beds 1 with Balcony I Family Bathroom I Ext Store I Car-Port
First Floor Plans (clockwise from top left)
- Master Bedroom, Walk-In Robe & En-Suite with access to private Balcony
- Family Bathroom
- Double Bedroom with access to private Balcony
- Double Bedroom with Walk-In Robe or En-Suite with access to private Balcony
Planning, Build, Value, Longevity & the Environment
Most buildings in our portfolio will require planning permission, if you are not familiar with the planning process then it can be something of a minefield and professional help should always be sought, to help you we have produced a handy quide which explains how the process works - click on the icon below.
Our buildings benefit from fast build times once on site - assembly takes between 1 and 5 weeks depending on the size and complexity? Unlike traditional building methods which typically take between 6 to 12 months and are dependant on the weather.
Build costs for traditional building methods range from around £2,700 per square metre to over £3,000 per square metres for a higher spec build - the costs then for a typical 4 bed home, depending on the location, will come out at around £400,000. Your log building once committed to manufacture will be fixed in price, no budgetting for cost over-runs as is the norm of conventional build methods and we will be considerably more cost-effective to build, saving you time and money!
Whilst Ritsu make use of modern processing and production methods, the basic design principles are those of log homes that have been in use of hundreds of years - tried and tested then, when we say your building should last for 100 years or more, it's based on experience, not supposition.
Finally, you will be buying a log building that is amongst the most environmentally friendly buildings available, and also, one of the healthiest environments in which to live and work.









