GLORIA
5 Bedrooms I Family Home
Creating amazing spaces and experiences
Gloria
Aptly Named
By any measure, Gloria stands as testimony as to what can be achieved using timber logs.
At over 500 square metres Gloria is our largest Standard model offering generous proportions 5 bedrooms - the Master Suite runs to over 101 square metres, the same size as Atis which has 4 bedrooms and larger than moist 3 bedroom homes!
Add a dining room where the dining table might seat 16 and a landing upstairs that itself accounts for 72 square metres with access to a large balcony and you get an idea of the scale that Gloria offers.
The design ensures that Gloria will be bathed in light with large windows and doors to all facades.
Do not forget, this is a home with a lifespan easily competing or out-competing conventional builds at over 100 years and with square logs and City Corners it could be at home even in towns and cities.
Gloria - Floors 2 I 487.8 m2 I Entrance Lobby I Cloakroom I WC I Master Bedroom Suite with His/Hers Walk-In Robe & En-Suite I Kitchen I Large Dining Room (seats 16) I Large Lounge I Large Landing I Family Bathroom I Master Bedroom with En-Suite & Balcony I Large Bedroom with Balcony I 2 further Large Bedrooms
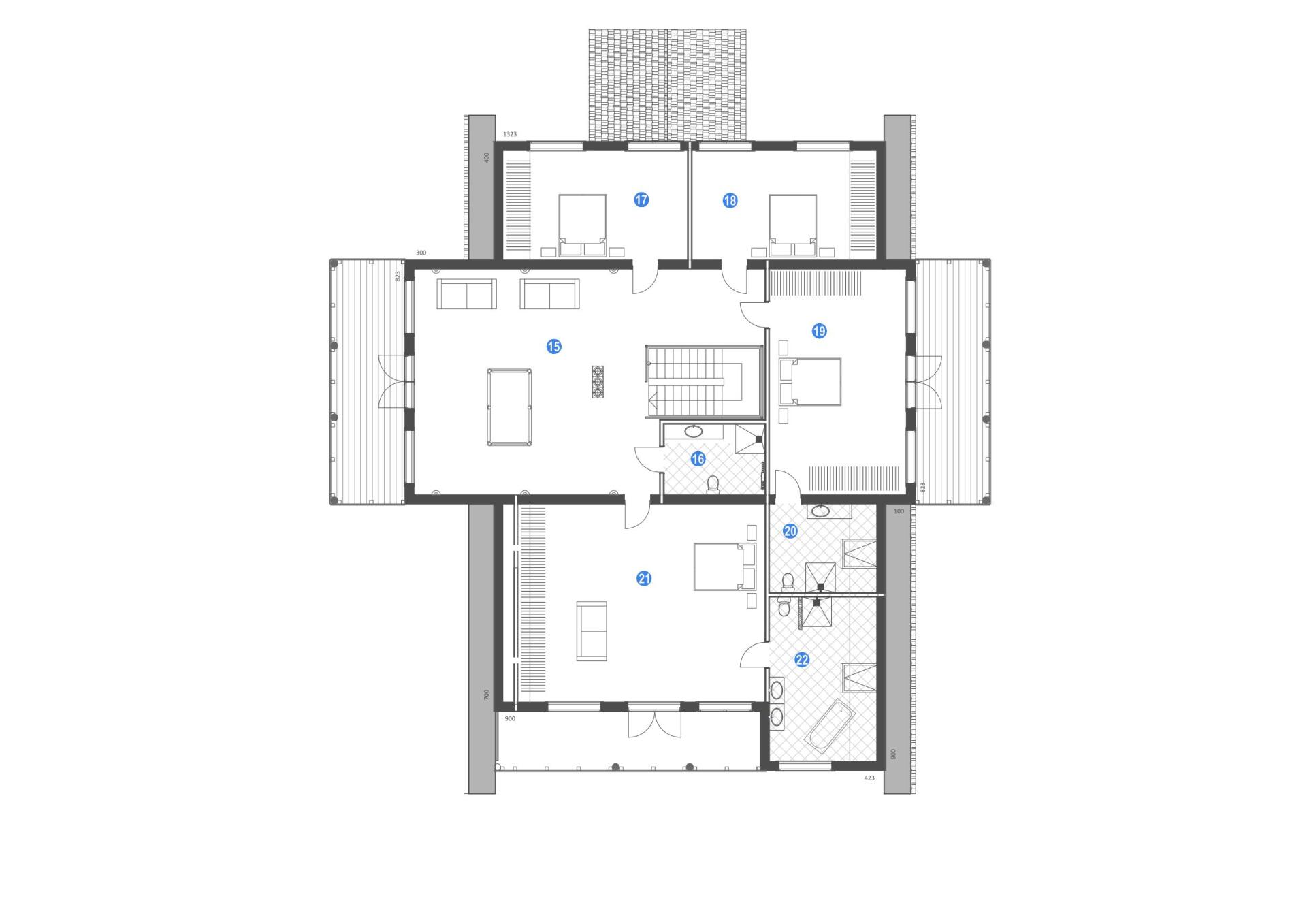
Ground Floor Plans (clockwise from top left)
- Large Cloaks I Entrance Vestibule
- Kitchen
- Dining Room
- Master Bedroom Suite I Walk-in Robe I En-Suite
- Lounge
Click for larger image
Gloria - Floors 2 I 487.8 m2 I Entrance Lobby I Cloakroom I WC I Master Bedroom Suite with His/Hers Walk-In Robe & En-Suite I Kitchen I Large Dining Room (seats 16) I Large Lounge I Large Landing I Family Bathroom I Master Bedroom with En-Suite & Balcony I Large Bedroom with Balcony I 2 further Large Bedrooms
First Floor Plans (clockwise from top left)
- 2 Double Bedrooms
- Double Bedroom with En-Suite and private Balcony
- Double Bedroom with En-Suite and private Balcony
- Large Landing with access to Balcony
- WC
Gloria as bulit


Planning, Build, Value, Longevity & the Environment
Most buildings in our portfolio will require planning permission, if you are not familiar with the planning process then it can be something of a minefield and professional help should always be sought, to help you we have produced a handy quide which explains how the process works - click on the icon below.
Our buildings benefit from fast build times once on site - assembly takes between 1 and 5 weeks depending on the size and complexity? Unlike traditional building methods which typically take between 6 to 12 months and are dependant on the weather.
Build costs for traditional building methods range from around £2,700 per square metre to over £3,000 per square metres for a higher spec build - the costs then for a typical 4 bed home, depending on the location, will come out at around £400,000. Your log building once committed to manufacture will be fixed in price, no budgetting for cost over-runs as is the norm of conventional build methods and we will be considerably more cost-effective to build, saving you time and money!
Whilst Ritsu make use of modern processing and production methods, the basic design principles are those of log homes that have been in use of hundreds of years - tried and tested then, when we say your building should last for 100 years or more, it's based on experience, not supposition.
Finally, you will be buying a log building that is amongst the most environmentally friendly buildings available, and also, one of the healthiest environments in which to live and work.









