GREGOR
3 Bedrooms I Family Home I Holiday Let I Office
Creating amazing spaces and experiences
Gregor
A Log Cabin?
Gregor is daringly different, if you thought Greg was different then look closely at Gregor!
We can pretty much guarantee you have not seen anything like Gregor and we are not talking just log cabins here, but most other building designs.
Visually similar to Greg, larger, with 3 bedrooms and its distinguishing feature - an annexe that just delivers on a whole range of possible uses? Gregor and Greg both make use of City Corners, designed to make a successful outcome through planning a more likely prospect.
Check out the annex, as a home this could be your home office, gym and sauna, with access from the front to the rear garden. Then check out the deck areas front and back, connecting you with your garden.
Gregor is pretty much anything you want it to be?
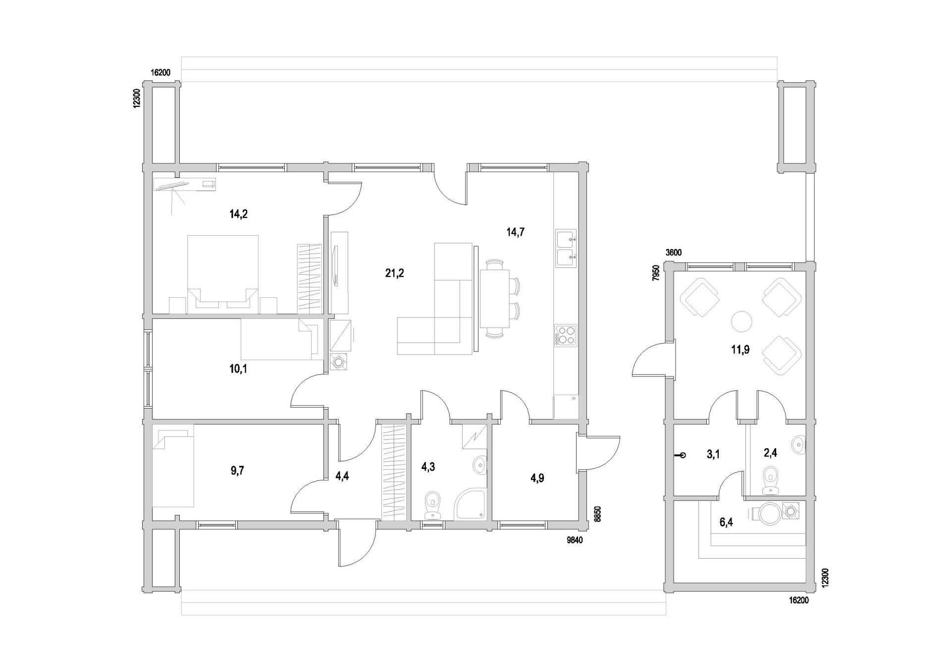
Gregor
- Floors 1 I 103.4 m2 I Entrance Lobby I Beds 3 I Kitchen/Dining I Lounge I Bathroom I Store (with Access to Annexe) I Breakout Area I Walk -In Shower I WC I Sauna
Ground Floor Plans (clockwise from top left)
- Double Bedroom
- Lounge
- Dining
- Kitchen
- Side Entrance Vestibule
- Bathroom
- Entrance Vestibule with Cloaks
- Single Bedroom
- Double Bedroom
Annex Floor Plans (clockwise from top left)
- A Break-Out room I Gym I Lounge
- Walk-in Shower
- WC
- Sauna
Click for larger image
Planning, Build, Value, Longevity & the Environment
Most buildings in our portfolio will require planning permission, if you are not familiar with the planning process then it can be something of a minefield and professional help should always be sought, to help you we have produced a handy quide which explains how the process works - click on the icon below.
Our buildings benefit from fast build times once on site - assembly takes between 1 and 5 weeks depending on the size and complexity? Unlike traditional building methods which typically take between 6 to 12 months and are dependant on the weather.
Build costs for traditional building methods range from around £2,700 per square metre to over £3,000 per square metres for a higher spec build - the costs then for a typical 4 bed home, depending on the location, will come out at around £400,000. Your log building once committed to manufacture will be fixed in price, no budgetting for cost over-runs as is the norm of conventional build methods and we will be considerably more cost-effective to build, saving you time and money!
Whilst Ritsu make use of modern processing and production methods, the basic design principles are those of log homes that have been in use of hundreds of years - tried and tested then, when we say your building should last for 100 years or more, it's based on experience, not supposition.
Finally, you will be buying a log building that is amongst the most environmentally friendly buildings available, and also, one of the healthiest environments in which to live and work.








