KATRIN
3 Bedrooms I Family Home I Retirement Home
Holiday Let
Creating amazing spaces and experiences
Katrin
Unique Character
Katrin is another rather misleading building, having the appeal of a cottage.
Transcendentally dimensional is a good term to use here, just like Dr Who’s Tardis, Katrin seems larger inside than it appears outside!
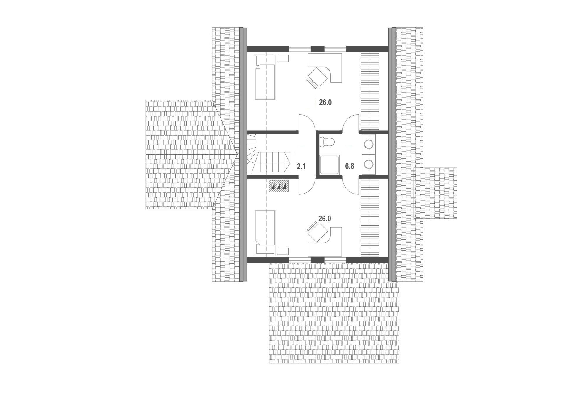
It is designed as a three bedroom home with three large double bedrooms, a master suite downstairs and two large double bedrooms upstairs.
A perfect retirement home with a ground floor bedroom and further bedrooms upstairs for guests, Katrin has lots of storage space, a dining room opening out onto a decked area to the garden and views beyond.
Katrin - Floors 2 I 137.9 m2 I Entrance with Cloaks I Study I WC I Kitchen I Dining I Lounge I Bedroom with En-Suite I 2 Beds I Family Bathroom I Terrace 14.2 m2 I Car Port
Ground Floor - clockwise from left
- Lounge
- Master Bedroom with En-Suite
- WC
- Entrance Vestibule with Cloaks & Utility
- Kitchen
- Dining Room
Click for larger image
Planning, Build, Value, Longevity & the Environment
Most buildings in our portfolio will require planning permission, if you are not familiar with the planning process then it can be something of a minefield and professional help should always be sought, to help you we have produced a handy quide which explains how the process works - click on the icon below.
Our buildings benefit from fast build times once on site - assembly takes between 1 and 5 weeks depending on the size and complexity? Unlike traditional building methods which typically take between 6 to 12 months and are dependant on the weather.
Build costs for traditional building methods range from around £2,700 per square metre to over £3,000 per square metres for a higher spec build - the costs then for a typical 4 bed home, depending on the location, will come out at around £400,000. Your log building once committed to manufacture will be fixed in price, no budgetting for cost over-runs as is the norm of conventional build methods and we will be considerably more cost-effective to build, saving you time and money!
Whilst Ritsu make use of modern processing and production methods, the basic design principles are those of log homes that have been in use of hundreds of years - tried and tested then, when we say your building should last for 100 years or more, it's based on experience, not supposition.
Finally, you will be buying a log building that is amongst the most environmentally friendly buildings available, and also, one of the healthiest environments in which to live and work.









