LIISU
Holiday Let
Creating amazing spaces and experiences
Liisu
Perfect for Short-Term Breaks?
Liisu, running to two stories is not ideally suited to use in a moderate garden as it is going to have to achieve planning permission.
Planning issues aside, Liisu is a capable performer across a multitude of possible uses.
Seen here in its two basic forms - with square logs above and round logs above, resulting in two very different buildings externally where internally they share essentially the same layout.
Small, but beautifully formed and will outlast pretty much any other building you might look to put on site - maximising the return on your investment.
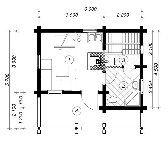
Liisu - Floors 2 I 43.7 m2 I Kitchenette I Lounge/Dining I Bathroom I Galleried Bedroom I Terrace 9.2m2
Ground Floor - clockwise from left
- Stairs
- Kitchenette
- Sauna
- Bathroom
- Lounge
First Floor - clockwise from left
- Galleried Bedroom
With some revisions to the internal layout - e.g. losing the sauna room and using instead as a kitchen, Liisu can become a more practical log building for short lets?
Click for larger image
Planning, Build, Value, Longevity & the Environment
Most buildings in our portfolio will require planning permission, if you are not familiar with the planning process then it can be something of a minefield and professional help should always be sought, to help you we have produced a handy quide which explains how the process works - click on the icon below.
Our buildings benefit from fast build times once on site - assembly takes between 1 and 5 weeks depending on the size and complexity? Unlike traditional building methods which typically take between 6 to 12 months and are dependant on the weather.
Build costs for traditional building methods range from around £2,700 per square metre to over £3,000 per square metres for a higher spec build - the costs then for a typical 4 bed home, depending on the location, will come out at around £400,000. Your log building once committed to manufacture will be fixed in price, no budgetting for cost over-runs as is the norm of conventional build methods and we will be considerably more cost-effective to build, saving you time and money!
Whilst Ritsu make use of modern processing and production methods, the basic design principles are those of log homes that have been in use of hundreds of years - tried and tested then, when we say your building should last for 100 years or more, it's based on experience, not supposition.
Finally, you will be buying a log building that is amongst the most environmentally friendly buildings available, and also, one of the healthiest environments in which to live and work.









