MARI
Multi-Use
Creating amazing spaces and experiences
Mari
Summer House & so much more
That Mari is small enough to fit into most gardens with a footprint of just 17 m2, means that you have just the widest amount of possible uses.
You get year round use, though in the colder months additional heating will be required, Mari is no garden shed, it’s like all other log buildings from us, built to last.
You might buy 8 (or more - life expectancy of most sheds is little more than 10 years) similarly sized garden sheds in the time you will own just one Mari log building.
Chalk and cheese then, Mari wins!
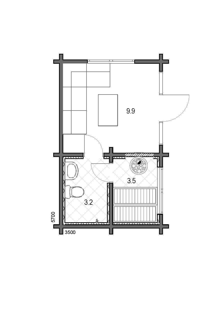
Mari - Floors 1 I 17 m2 I Square Logs I Sauna I Seating Area I WC I Option: Deck Area
Ground Floor - clockwise from left
- Lounge
- Sauna
- WC
Mari, shown here in its standard guise, has an extensive range of possible uses, the more so as it is our smallest building and can fit into most gardens. As a log building it's designed to last - we push for well over 100 years with just basic maintenance.
Click for larger image
Planning, Build, Value, Longevity & the Environment
Most buildings in our portfolio will require planning permission, if you are not familiar with the planning process then it can be something of a minefield and professional help should always be sought, to help you we have produced a handy quide which explains how the process works - click on the icon below.
Our buildings benefit from fast build times once on site - assembly takes between 1 and 5 weeks depending on the size and complexity? Unlike traditional building methods which typically take between 6 to 12 months and are dependant on the weather.
Build costs for traditional building methods range from around £2,700 per square metre to over £3,000 per square metres for a higher spec build - the costs then for a typical 4 bed home, depending on the location, will come out at around £400,000. Your log building once committed to manufacture will be fixed in price, no budgetting for cost over-runs as is the norm of conventional build methods and we will be considerably more cost-effective to build, saving you time and money!
Whilst Ritsu make use of modern processing and production methods, the basic design principles are those of log homes that have been in use of hundreds of years - tried and tested then, when we say your building should last for 100 years or more, it's based on experience, not supposition.
Finally, you will be buying a log building that is amongst the most environmentally friendly buildings available, and also, one of the healthiest environments in which to live and work.








