MARIA
5 Bedrooms I Substantial Family Home
Creating amazing spaces and experiences
Maria
Words not needed?
You might pay thousands of pounds for an architect to design something along the lines of Maria?
Maria's unconventional looks belies the fact that it is still, very much a timber log building, a clear demonstration of just how versatile this material and method of building can be!
At 353 square metres Maria is our second largest standard log building and a stunning family home and with a lifespan in excess of 100 years it's ready to compete with any other building method with no unforeseen costs in the build, immune to weather delays and the other vagories of traditional build.
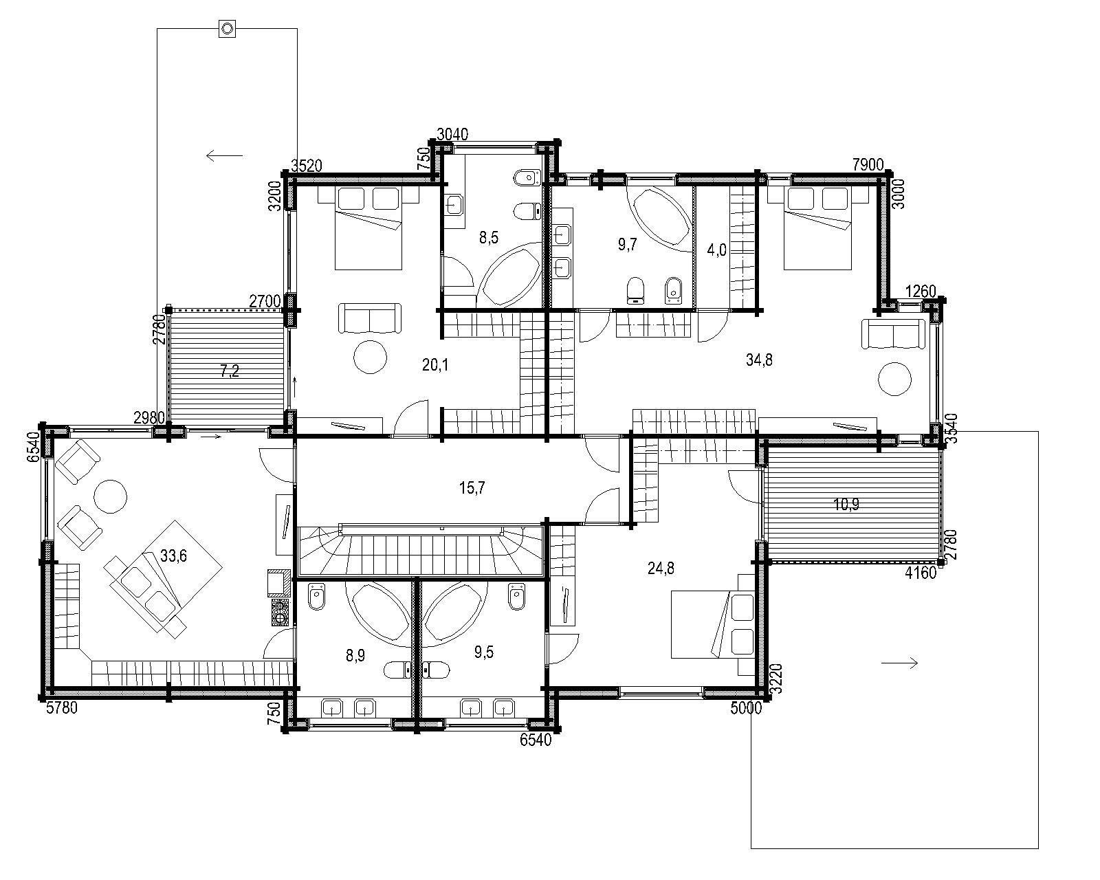
Maria's internal magnificence can only be seen in the plan views, a hallway stretching, seemingly effortlessly, into the distance.
A large guest bedroom with en-suite and walk in robes downstairs, whilst upstairs, all 5 large double bedrooms are en-suite, 2 have shared balcony access, a third has private access to its own balcony.
Maria - Floors 2 I 353 m2 I Entrance I Hall I Kitchen Dining I Lounges 2 I Bed with En-Suite I WC I Utility I Shower room I Sauna I Landing I Master Bed with En-Suite, Walk-in Robe & Balcony I Beds 3 all En-Suite 1 with Balcony I Terrace & Balconies 41.5 m2 I Carports 2 with Store
Ground Floor - clockwise from left
- Kitchen I Dining
- TV Lounge I Home Office
- WC
- Cloaks I Store
- Master Bedroom
- Entrance I Hall
- Car-Port for 2 cars
- Workshop I External Store
- Utility Room
- Showers I Sauna
- Lounge
Click for larger image
Maria - Floors 2 I 353 m2 I Entrance I Hall I Kitchen Dining I Lounges 2 I Bed with En-Suite I WC I Utility I Shower room I Sauna I Landing I Master Bed with En-Suite, Walk-in Robe & Balcony I Beds 3 all En-Suite 1 with Balcony I Terrace & Balconies 41.5 m2 I Carports 2 with Store
First Floor - clockwise from left
- Double Bedroom with En-Suite and shared access to Balcony
- Double Bedroom with En-Suite
- Double Bedroom with En-Suite and access to private Balcony
- Hall I Stairs
- Double Bedroom with En-Suite and shared access to Balcony
Planning, Build, Value, Longevity & the Environment
Most buildings in our portfolio will require planning permission, if you are not familiar with the planning process then it can be something of a minefield and professional help should always be sought, to help you we have produced a handy quide which explains how the process works - click on the icon below.
Our buildings benefit from fast build times once on site - assembly takes between 1 and 5 weeks depending on the size and complexity? Unlike traditional building methods which typically take between 6 to 12 months and are dependant on the weather.
Build costs for traditional building methods range from around £2,700 per square metre to over £3,000 per square metres for a higher spec build - the costs then for a typical 4 bed home, depending on the location, will come out at around £400,000. Your log building once committed to manufacture will be fixed in price, no budgetting for cost over-runs as is the norm of conventional build methods and we will be considerably more cost-effective to build, saving you time and money!
Whilst Ritsu make use of modern processing and production methods, the basic design principles are those of log homes that have been in use of hundreds of years - tried and tested then, when we say your building should last for 100 years or more, it's based on experience, not supposition.
Finally, you will be buying a log building that is amongst the most environmentally friendly buildings available, and also, one of the healthiest environments in which to live and work.









