Petta
3 Bedrooms I Family Home I Retirement Home
Creating amazing spaces and experiences
Petta
Building a Basement?
Petta shows how you can make the best use of a plot, perhaps limited in size and with a sloping site?
At 112 square metres Petta is log building offering a reasonable footprint for running a family home. Adding a basement though gives your family room to grow and adapt.
Your basement could house a garage or simply max out the accommodation for your family - a games room, gym, sauna or even a home cinema, making use of the fact that it is underground?
Petta shown here features square and round logs - showing the visual effects of both.
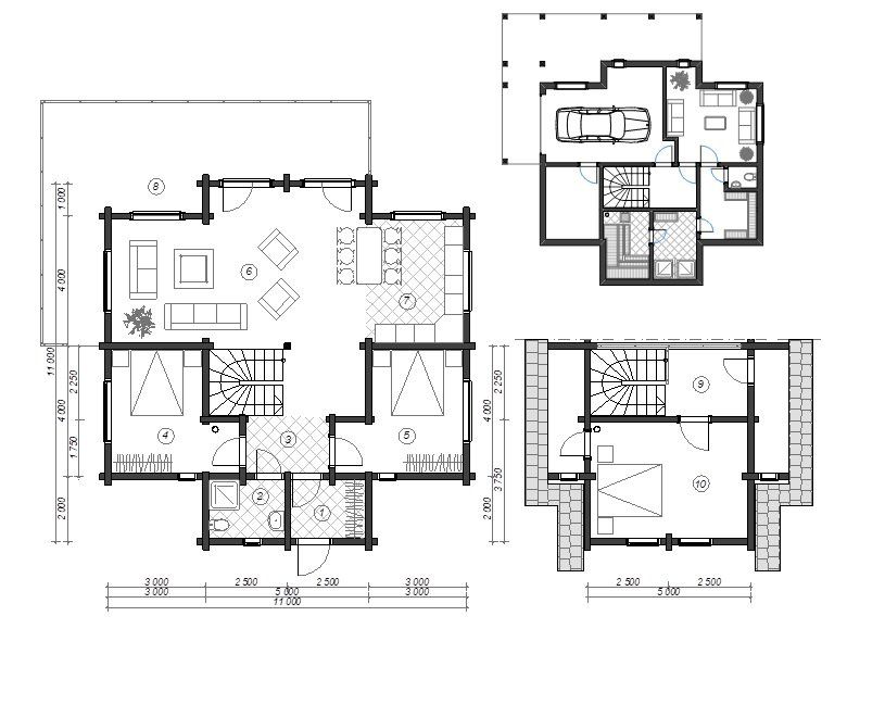
Petta - Floors 2 I 112.3 m2 I Entrance Lobby I Kitchen/dining I Lounge I Beds 2 I WC I Master Bed with En-Suite I Beds 1
Ground Floor - clockwise from left
- Lounge
- Dining
- Kitchen
- Double Bedroom
- Entrance Vestibule
- Bathroom
- Double Bedroom
- Stairs
First Floor - clockwise from left
- Double Bedroom
Basement - by others
Click for larger image
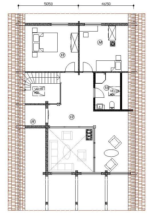
Petta - Floors 2 I 174.8 m2 I Entrance I Kitchen/Dining/Lounge I Utility Room & Area I Linen Store I Shower I Sauna I WC I Bedroom or Other I Lounge I Family Bathroom I Beds 3 I Store I Terrace 62.1 m2
First Floor - clockwise from left
- Double Bedroom
- Double Bedroom
- Bathroom
- Galleried Landing
- Store
- Stairs
Petta as built (with modifications)


Planning, Build, Value, Longevity & the Environment
Most buildings in our portfolio will require planning permission, if you are not familiar with the planning process then it can be something of a minefield and professional help should always be sought, to help you we have produced a handy quide which explains how the process works - click on the icon below.
Our buildings benefit from fast build times once on site - assembly takes between 1 and 5 weeks depending on the size and complexity? Unlike traditional building methods which typically take between 6 to 12 months and are dependant on the weather.
Build costs for traditional building methods range from around £2,700 per square metre to over £3,000 per square metres for a higher spec build - the costs then for a typical 4 bed home, depending on the location, will come out at around £400,000. Your log building once committed to manufacture will be fixed in price, no budgetting for cost over-runs as is the norm of conventional build methods and we will be considerably more cost-effective to build, saving you time and money!
Whilst Ritsu make use of modern processing and production methods, the basic design principles are those of log homes that have been in use of hundreds of years - tried and tested then, when we say your building should last for 100 years or more, it's based on experience, not supposition.
Finally, you will be buying a log building that is amongst the most environmentally friendly buildings available, and also, one of the healthiest environments in which to live and work.









