PIIA
3 Bedrooms I Retirement Home I Holiday Let
Creating amazing spaces and experiences
Piia
A Different Dimension?
Piia, with its pent roof design shares this feature with other log buildings in our portfolio, Ella for one, Gertrud being another.
It adds a different design dimension to the building altogether less conventional than the standard offerings by the UK’s mass developers leaving little scope for personal flair.
Piia can be what you want it to be, a retirement home, small family home and equally, a holiday let. This design doesn’t make a statement for any particular market sector.
At 162 m2 Piia is an above average size for a 3 bedroomed home and with some minor amendments to the floor plan opens up more possibilities.
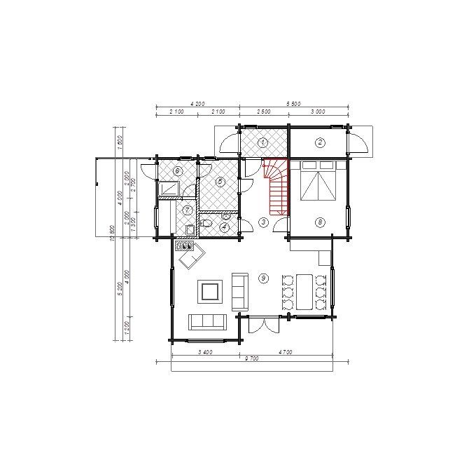
Piia - Floors 2 I 162.4 m2 Entrance Lobby I Kitchen I Dining I Large Lounge I WC I Bed 1 with En-Suite I Beds 2 with En-Suites I Linen Store
Ground Floor - clockwise from left
- Front Entrance
- External Store
- Shower I Sauna I WC
- Stairs
- Double Bedroom
- Kitchen
- Dining
- Lounge
Click for larger image
Piia as built


Planning, Build, Value, Longevity & the Environment
Most buildings in our portfolio will require planning permission, if you are not familiar with the planning process then it can be something of a minefield and professional help should always be sought, to help you we have produced a handy quide which explains how the process works - click on the icon below.
Our buildings benefit from fast build times once on site - assembly takes between 1 and 5 weeks depending on the size and complexity? Unlike traditional building methods which typically take between 6 to 12 months and are dependant on the weather.
Build costs for traditional building methods range from around £2,700 per square metre to over £3,000 per square metres for a higher spec build - the costs then for a typical 4 bed home, depending on the location, will come out at around £400,000. Your log building once committed to manufacture will be fixed in price, no budgetting for cost over-runs as is the norm of conventional build methods and we will be considerably more cost-effective to build, saving you time and money!
Whilst Ritsu make use of modern processing and production methods, the basic design principles are those of log homes that have been in use of hundreds of years - tried and tested then, when we say your building should last for 100 years or more, it's based on experience, not supposition.
Finally, you will be buying a log building that is amongst the most environmentally friendly buildings available, and also, one of the healthiest environments in which to live and work.









