POLLINA
3 Bedrooms I Holiday Let I Multi-Use
Creating amazing spaces and experiences
Pollina
A Modern Take?
From the front or rear, Pollina is your stereo typical log cabin!
Deck and balcony areas give Pollina its character and create that visual appeal that is so much our vision of a log cabin.
Pollinas three double bedrooms each have access to the balcony areas, downstairs two additional balcony areas - together creating additional living space.
In the guise of a log cabin, your first thoughts as to its intended use fall of course to the holiday sector - as a holiday let. Here its sauna adds to its potential as a holiday let as an amenity not offered by your competitors.
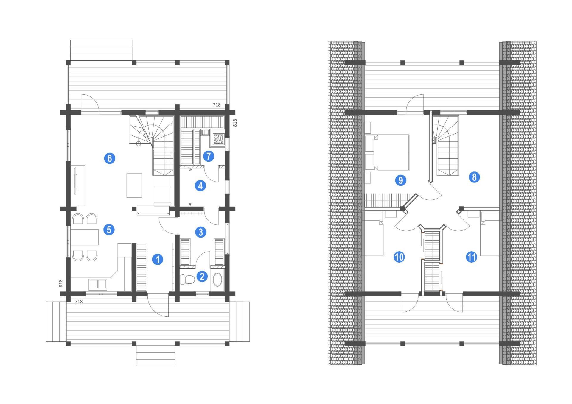
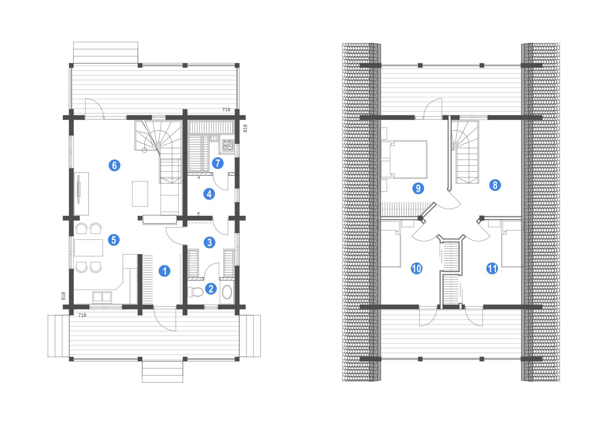
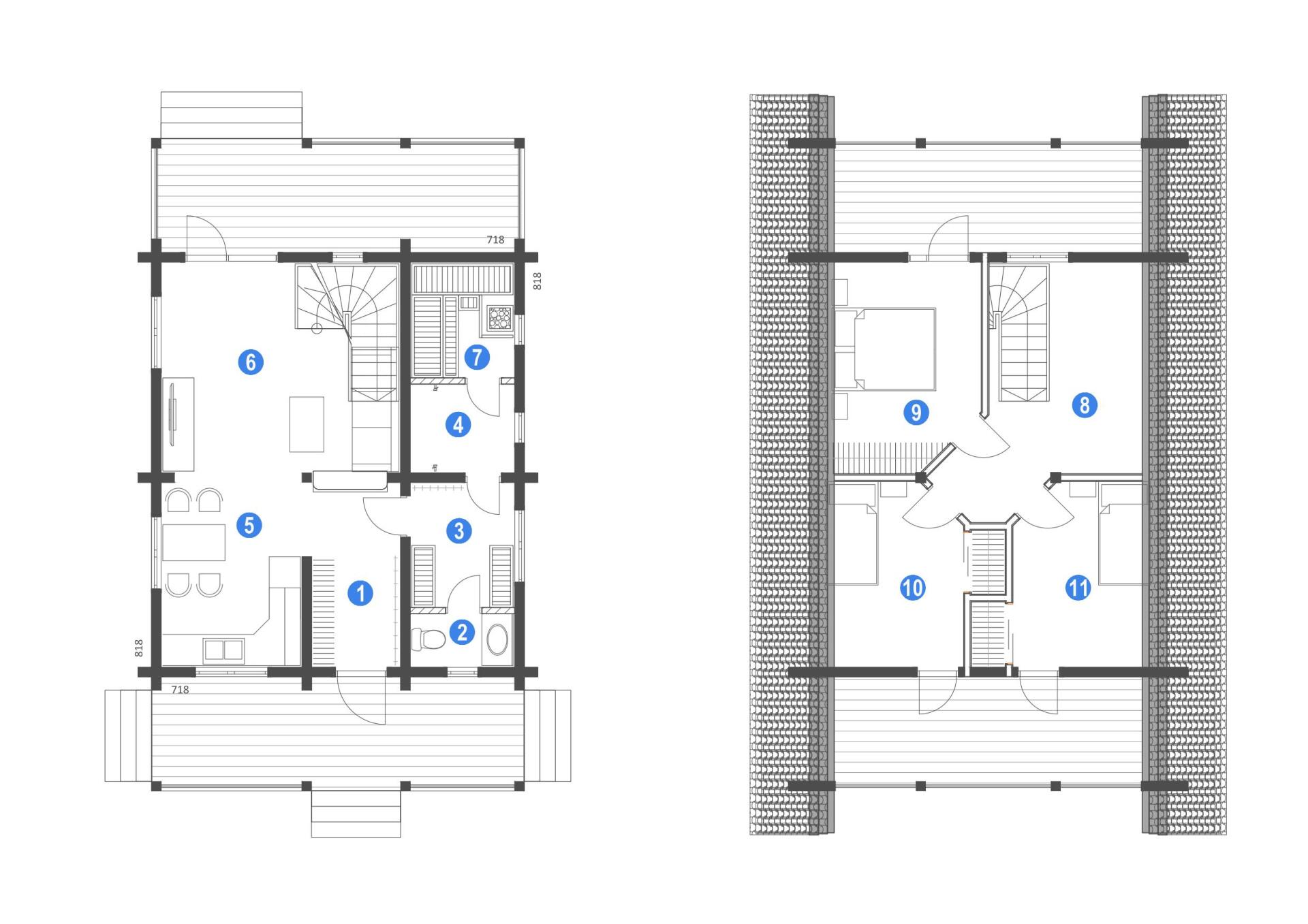
Pollina - Floors 2 I 95.5 m2 I Entrance I Kitchen/Diner I Lounge I WC I Shower I Sauna I Beds 3 I Terrace 58.4 m2
Ground Floor - clockwise from left
- Rear Entrance
- Stairs
- Sauna
- Bathroom
- Front Entrance Cloaks
- Kitchen
- Lounge
First Floor - clockwise from left
- Double Bedroom
- Stairs I Landing
- Single Bedroom
- Single Bedroom
Click for larger image
Planning, Build, Value, Longevity & the Environment
Most buildings in our portfolio will require planning permission, if you are not familiar with the planning process then it can be something of a minefield and professional help should always be sought, to help you we have produced a handy quide which explains how the process works - click on the icon below.
Our buildings benefit from fast build times once on site - assembly takes between 1 and 5 weeks depending on the size and complexity? Unlike traditional building methods which typically take between 6 to 12 months and are dependant on the weather.
Build costs for traditional building methods range from around £2,700 per square metre to over £3,000 per square metres for a higher spec build - the costs then for a typical 4 bed home, depending on the location, will come out at around £400,000. Your log building once committed to manufacture will be fixed in price, no budgetting for cost over-runs as is the norm of conventional build methods and we will be considerably more cost-effective to build, saving you time and money!
Whilst Ritsu make use of modern processing and production methods, the basic design principles are those of log homes that have been in use of hundreds of years - tried and tested then, when we say your building should last for 100 years or more, it's based on experience, not supposition.
Finally, you will be buying a log building that is amongst the most environmentally friendly buildings available, and also, one of the healthiest environments in which to live and work.








