REENA
2 Bedrooms I Retirement Home I Holiday Let
Creating amazing spaces and experiences
Reena
Simple by Design
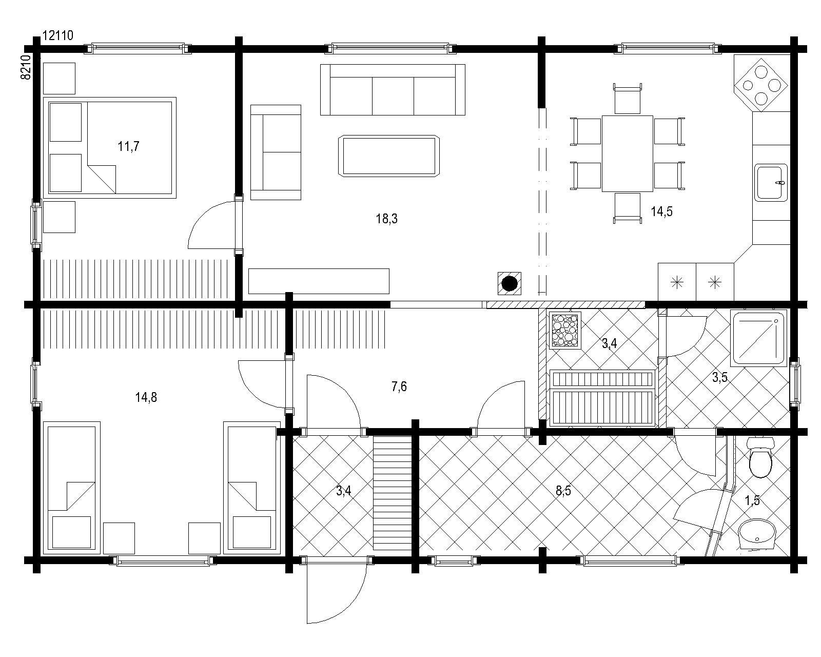
At nearly 90 square metres, Reena is surprisingly spacious and makes the most of its footprint.
All of our standard models were once designs for a specific customer, so layouts sometimes seem a little odd - this no less true for Reena, which has a large ante room to the sauna.
Removing the sauna and ante-room is always an option, creating a reasonably sized bathroom, possibly adding a utility room at the same time with a useful store room.
Reena is about the size of a typical 3 bedroom house in the UK, so it is no “shoe box home”.
Reena - Floors 1 I 87.2 m2 I Entrance Lobby I Kitchen/Dining I Lounge I Beds 2 I WC I Shower I Sauna
Ground Floor - clockwise from left
- Double Bedroom
- Lounge
- Dining I Kitchen
- Bathroom I WC
- Shower I Sauna
Click for larger image
Reena as built (with modifications & garage workshop)

Planning, Build, Value, Longevity & the Environment
Most buildings in our portfolio will require planning permission, if you are not familiar with the planning process then it can be something of a minefield and professional help should always be sought, to help you we have produced a handy quide which explains how the process works - click on the icon below.
Our buildings benefit from fast build times once on site - assembly takes between 1 and 5 weeks depending on the size and complexity? Unlike traditional building methods which typically take between 6 to 12 months and are dependant on the weather.
Build costs for traditional building methods range from around £2,700 per square metre to over £3,000 per square metres for a higher spec build - the costs then for a typical 4 bed home, depending on the location, will come out at around £400,000. Your log building once committed to manufacture will be fixed in price, no budgetting for cost over-runs as is the norm of conventional build methods and we will be considerably more cost-effective to build, saving you time and money!
Whilst Ritsu make use of modern processing and production methods, the basic design principles are those of log homes that have been in use of hundreds of years - tried and tested then, when we say your building should last for 100 years or more, it's based on experience, not supposition.
Finally, you will be buying a log building that is amongst the most environmentally friendly buildings available, and also, one of the healthiest environments in which to live and work.








