ROBERTA
3 Bedrooms I Family Home I Retirement Home
Creating amazing spaces and experiences
Roberta
Formal Design
Other than the fact that Roberta is a log home, it’s design is very formal, almost English in origin.
It is shown here with “castellated” corners and wall junctions but is also available with City Corners which remove the traditional castellated design, replacing the corners and wall junctions with a more planning friendly design, giving our square log buildings a more conventional visual line.
As one of our larger log buildings, Roberta has been designed around creating space rather than bedrooms, despite its size it’s just a 3 bedroom home.
Room to move around in then.
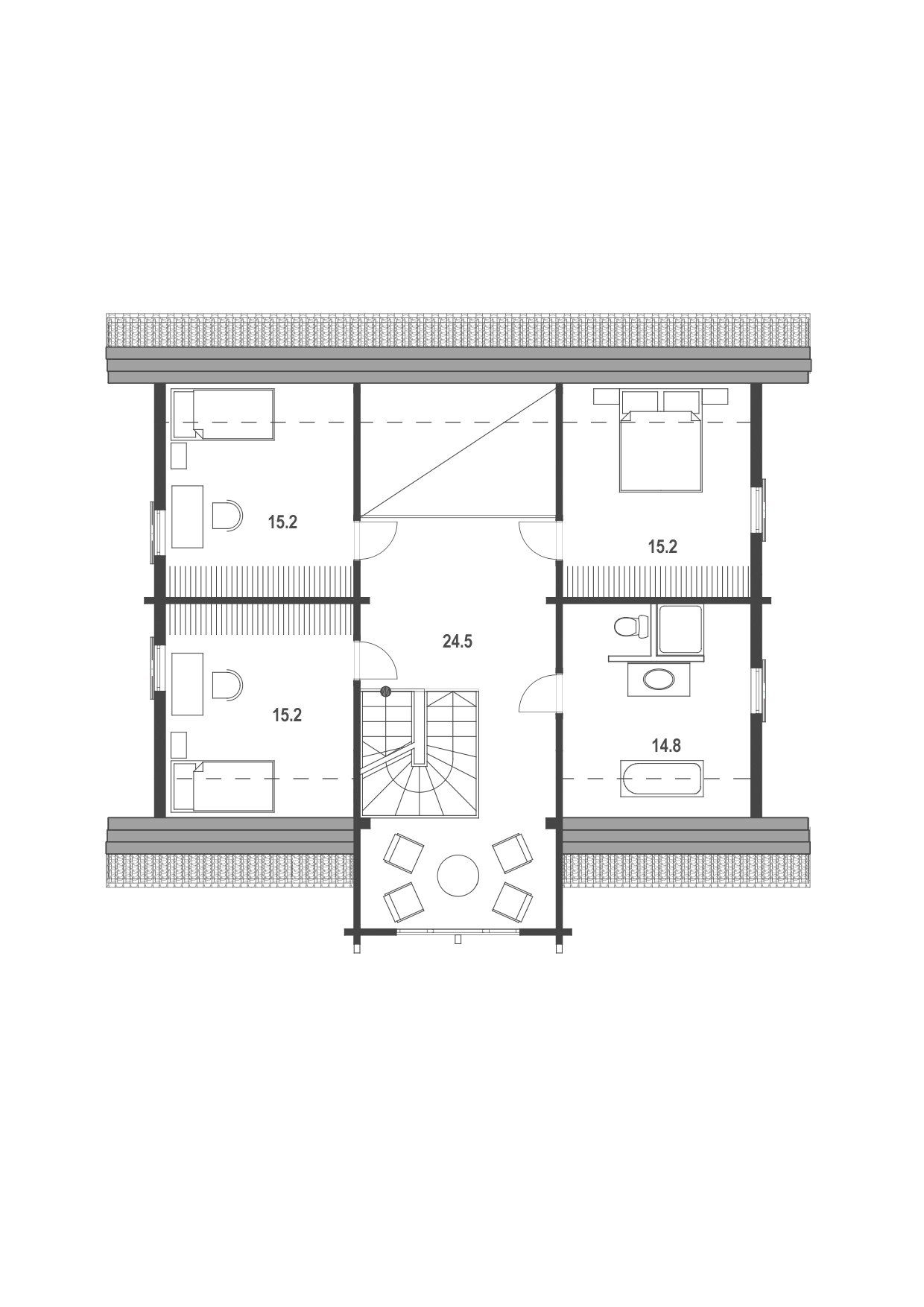
Roberta - Floors 2 I 175. m2 I Entrance Lobby I Kitchen I Dining I Lounge I Bathroom I Study I Utiliity Room I Landing I Beds 3 I Family Bathroom I Terrace 6.6 m2
Ground Floor - clockwise from left
- Lounge
- Dining
- Kitchen
- Utility
- WC I Shower
- Front Entrance Vestibule
- Stairs
- Home Office
Click for larger image
Roberta - Floors 2 I 175. m2 I Entrance Lobby I Kitchen I Dining I Lounge I Bathroom I Study I Utiliity Room I Landing I Beds 3 I Family Bathroom I Terrace 6.6 m2
First Floor - clockwise from left
- Double Bedroom
- Landing I Stairs
- Double Bedroom
- Family Bathroom
- Double Bedroom
Click for larger image
Planning, Build, Value, Longevity & the Environment
Most buildings in our portfolio will require planning permission, if you are not familiar with the planning process then it can be something of a minefield and professional help should always be sought, to help you we have produced a handy quide which explains how the process works - click on the icon below.
Our buildings benefit from fast build times once on site - assembly takes between 1 and 5 weeks depending on the size and complexity? Unlike traditional building methods which typically take between 6 to 12 months and are dependant on the weather.
Build costs for traditional building methods range from around £2,700 per square metre to over £3,000 per square metres for a higher spec build - the costs then for a typical 4 bed home, depending on the location, will come out at around £400,000. Your log building once committed to manufacture will be fixed in price, no budgetting for cost over-runs as is the norm of conventional build methods and we will be considerably more cost-effective to build, saving you time and money!
Whilst Ritsu make use of modern processing and production methods, the basic design principles are those of log homes that have been in use of hundreds of years - tried and tested then, when we say your building should last for 100 years or more, it's based on experience, not supposition.
Finally, you will be buying a log building that is amongst the most environmentally friendly buildings available, and also, one of the healthiest environments in which to live and work.









