Tuuli
1 Bedroom I Holiday Let I Cafe I Retail
Creating amazing spaces and experiences
Tuuli
Time for a Holiday?
Another log building from Ritsu that is the epitome of our vision of a log cabin that could so easily have been brought, log by log, from the Alps. It’s not, its made in Estonia - the real home of the log cabin!
Tuuli is not a family home but it is, without any hesitation a holiday let for the “typical family” with its double bedroom upstairs and a double bedroom downstairs - perfect also as a getaway for friends?
The double bedroom upstairs has access to the balcony and a good sized bathroom or lounge area.
As a holiday let you might expect there to be a sauna and there is, which with a log burner are really must haves in a traditional log cabin?
With a lifespan of 100 years plus there is ample time to recover your investment, and then some.
Tuuli - Floors 2 I 92.3 m 2 I Entrance Lobby I Cloaks I Kitchen/Diner I Lounge I Bed 1 I Bathroom I Sauna I Large Landing I Master Bed with En-Suite & Balcony I Terrace 24.8 m2
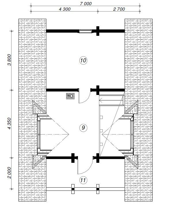
Ground Floor - clockwise from left
- WC
- Front Entrance Vestibule
- Double Bedroom
- Stairs
- Lounge
- Dining
- Kitchen
- Shower I Sauna
Click for larger image
Tuuli - Floors 2 I 92.3 m 2 I Entrance Lobby I Cloaks I Kitchen/Diner I Lounge I Bed 1 I Bathroom I Sauna I Large Landing I Master Bed with En-Suite & Balcony I Terrace 24.8 m2
First Floor - clockwise from left
- Double Bedroom
- Galleried Landing
- Balcony
Click for larger image
Planning, Build, Value, Longevity & the Environment
Most buildings in our portfolio will require planning permission, if you are not familiar with the planning process then it can be something of a minefield and professional help should always be sought, to help you we have produced a handy quide which explains how the process works - click on the icon below.
Our buildings benefit from fast build times once on site - assembly takes between 1 and 5 weeks depending on the size and complexity? Unlike traditional building methods which typically take between 6 to 12 months and are dependant on the weather.
Build costs for traditional building methods range from around £2,700 per square metre to over £3,000 per square metres for a higher spec build - the costs then for a typical 4 bed home, depending on the location, will come out at around £400,000. Your log building once committed to manufacture will be fixed in price, no budgetting for cost over-runs as is the norm of conventional build methods and we will be considerably more cost-effective to build, saving you time and money!
Whilst Ritsu make use of modern processing and production methods, the basic design principles are those of log homes that have been in use of hundreds of years - tried and tested then, when we say your building should last for 100 years or more, it's based on experience, not supposition.
Finally, you will be buying a log building that is amongst the most environmentally friendly buildings available, and also, one of the healthiest environments in which to live and work.









