VIRGE
Bedrooms 3 I Family Home I Retirement Home
Creating amazing spaces and experiences
Virge
Colonial Styling
Virge, has an almost “colonial” feel to its design yet it still uses the same basic techniques and skills in its design and construction as any other log building, but of course, benefits from modern design, technology and production.
Virge features square logs retaining the traditional castellated corners – a feature of logs cabins for hundreds of years. It’s modern design breaks the mould in log cabin appeal, 3 bedrooms with a flexible ground floor layout
Virge is a standard model and benefits the customer by reducing design costs and time, uniquely it features a sauna as standard but this could easily become a large family bathroom and the existing bathroom an en-suite?
An integral garage with workshop and store - room then for hobbies and storage.
Virge
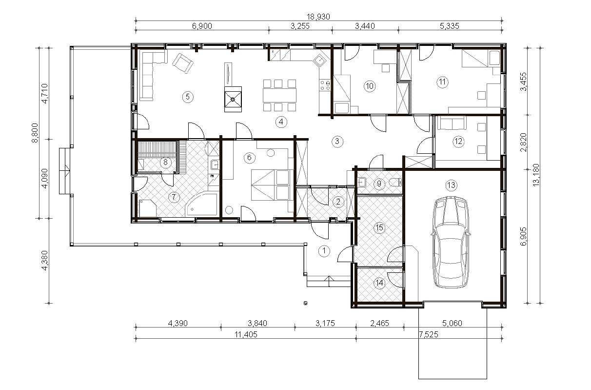
- Floors 1 I 187 m2 I Entrance Lobby I Large Hall I Kitchen/Diner I Lounge I Bathrooms 2 I Beds 3 I Linen Store I Terrace 12.3 m2
Ground Floor - clockwise from left
- Lounge
- Dining
- Kitchen
- Double Bedroom
- Double Bedroom
- Home Office
- Garage
- Store
- Workshop
- Front Entrance Vestibule
- Double Bedroom
- Bathroom I Sauna
Click for larger image
Planning, Build, Value, Longevity & the Environment
Most buildings in our portfolio will require planning permission, if you are not familiar with the planning process then it can be something of a minefield and professional help should always be sought, to help you we have produced a handy quide which explains how the process works - click on the icon below.
Our buildings benefit from fast build times once on site - assembly takes between 1 and 5 weeks depending on the size and complexity? Unlike traditional building methods which typically take between 6 to 12 months and are dependant on the weather.
Build costs for traditional building methods range from around £2,700 per square metre to over £3,000 per square metres for a higher spec build - the costs then for a typical 4 bed home, depending on the location, will come out at around £400,000. Your log building once committed to manufacture will be fixed in price, no budgetting for cost over-runs as is the norm of conventional build methods and we will be considerably more cost-effective to build, saving you time and money!
Whilst Ritsu make use of modern processing and production methods, the basic design principles are those of log homes that have been in use of hundreds of years - tried and tested then, when we say your building should last for 100 years or more, it's based on experience, not supposition.
Finally, you will be buying a log building that is amongst the most environmentally friendly buildings available, and also, one of the healthiest environments in which to live and work.








