ROBIN
3 Bedrooms I Family Home I Retirement Home
Holiday Let
Creating amazing spaces and experiences
Robin
Courtyard Concept & More
Robin - brings a new concept in design to Ritsu's growing portfolio, as always, there is no such thing as a standard building, rather a collection of ideas to to get you started in finding a design that works for you.
Whether for a family home, retirement home or holiday let, it's your call!
In the form offered here Robin is a spacious 3 bedroomed property, with an office (or fourth bedroom) and then there's the "more" alluded to in our title, an annexe that can be put to any use - a granny annexe, guest accommodation or left as is, in the guise of a break-out area with a sauna, walk in showers and seating area.
Robin's courtyard design creates a sheltered outdoor space bringing this neglected feature of buildings back into modern design and into your project.
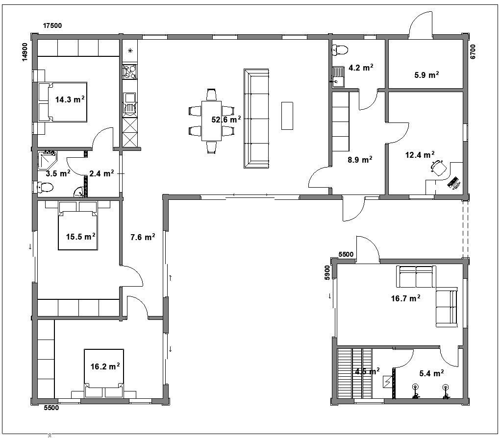
Robin - Floors 1 I 170.1. m2 I Entrance Lobby I Kitchen I Dining I Lounge I Bathroom I Office I Utiliity Room I Beds 3 I Family Bathroom I WC I Courtyard & Deck 67 m2 I Plant Room I Annexe with Seating Area, Walk-in Shower and Sauna
Ground Floor - clockwise from left
- Master Double Bedroom
- Double Bedroom 2
- Family Bathroom
- Double Bedroom 3
- Kitchen & Open Plan Living Area
- Entrance Vestibule
- WC
- Plant Room
- Office
Annexe
- Seating Area, Sauna and Walk-in showers - your design, your way, this could be a games room, gym or guest accommodation or simply incorporate this feature into your own unique home with our help.
Planning, Build, Value, Longevity & the Environment
Most buildings in our portfolio will require planning permission, if you are not familiar with the planning process then it can be something of a minefield and professional help should always be sought, to help you we have produced a handy quide which explains how the process works - click on the icon below.
Our buildings benefit from fast build times once on site - assembly takes between 1 and 5 weeks depending on the size and complexity? Unlike traditional building methods which typically take between 6 to 12 months and are dependant on the weather.
Build costs for traditional building methods range from around £2,700 per square metre to over £3,000 per square metres for a higher spec build - the costs then for a typical 4 bed home, depending on the location, will come out at around £400,000. Your log building once committed to manufacture will be fixed in price, no budgetting for cost over-runs as is the norm of conventional build methods and we will be considerably more cost-effective to build, saving you time and money!
Whilst Ritsu make use of modern processing and production methods, the basic design principles are those of log homes that have been in use of hundreds of years - tried and tested then, when we say your building should last for 100 years or more, it's based on experience, not supposition.
Finally, you will be buying a log building that is amongst the most environmentally friendly buildings available, and also, one of the healthiest environments in which to live and work.








