LAANA
4 Bedrooms I Family Home I Holiday Let
Creating amazing spaces and experiences
Laana
A Modern Twist
Laana has vestiges of a barn in its design with its Jerkinhead roof, far removed from a log cabin but as with all buildings from Ritsu, still timber outside and in, creating a different environment internally.
A 4 bedroom home as standard, of comfortable proportions - the downstairs bedroom, typical of many of our buildings, could become a home office or play room.
The now ubiquitous sauna room as standard can, without hesitation, be replaced with a utility room allowing for a larger kitchen as well?
Upstairs three large double bedrooms still make this a spacious family home if that is what you are looking for?
Two of the bedrooms upstairs have shared access to a balcony area, allowing you to start (or end) your day with a flourish.
Laana
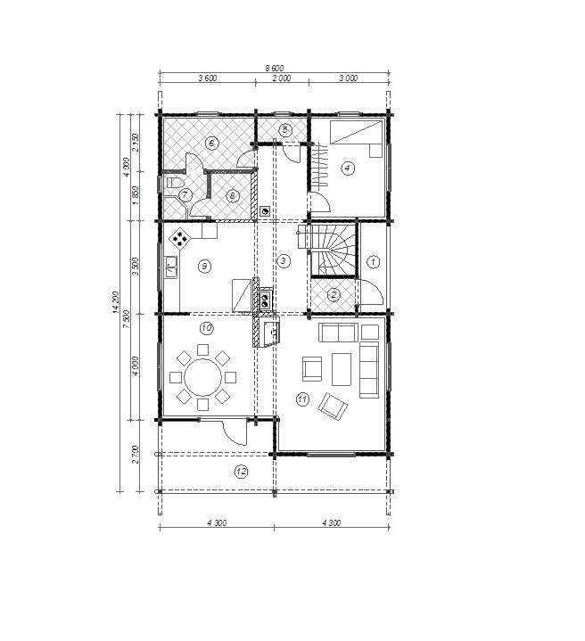
- Floors 2 I 172.1 m2 I Entrance I Kitchen I Dining I Lounge I WC I Bathroom I Utility I Bed/Study I Beds 3, 2 with Balcony I Terrace/Balcony 33.0 m2
Ground Floor - clockwise from left
- Sauna I WV I Shower
- Store
- Single Bedroom
- Stairs I Front Entrance
- Lounge
- Dining room
- Kitchen
Click for larger image
Laana
- Floors 2 I 172.1 m2 I Entrance I Kitchen I Dining I Lounge I WC I Bathroom I Utility I Bed/Study I Beds 3, 2 with Balcony I Terrace/Balcony 33.0 m2
First Floor - clockwise from left
- Double Bedroom
- Stairs I Landing
- Double Bedroom with shared access to Balcony
- Double Bedroom with shared access to Balcony
- Bathroom
Planning, Build, Value, Longevity & the Environment
Most buildings in our portfolio will require planning permission, if you are not familiar with the planning process then it can be something of a minefield and professional help should always be sought, to help you we have produced a handy quide which explains how the process works - click on the icon below.
Our buildings benefit from fast build times once on site - assembly takes between 1 and 5 weeks depending on the size and complexity? Unlike traditional building methods which typically take between 6 to 12 months and are dependant on the weather.
Build costs for traditional building methods range from around £2,700 per square metre to over £3,000 per square metres for a higher spec build - the costs then for a typical 4 bed home, depending on the location, will come out at around £400,000. Your log building once committed to manufacture will be fixed in price, no budgetting for cost over-runs as is the norm of conventional build methods and we will be considerably more cost-effective to build, saving you time and money!
Whilst Ritsu make use of modern processing and production methods, the basic design principles are those of log homes that have been in use of hundreds of years - tried and tested then, when we say your building should last for 100 years or more, it's based on experience, not supposition.
Finally, you will be buying a log building that is amongst the most environmentally friendly buildings available, and also, one of the healthiest environments in which to live and work.









