Ott
1 Bedroom I Holiday Let
Creating amazing spaces and experiences
Ott
Short for Otto - or Oht a Nickname for a Bear
Beyond the name, Ott is as cute as, well, baby bear.
In Estonia it would be a summer house, here in the UK we see it as a cute holiday let, packed with charm and character.
Under the overhanging sitting room is a practical terrace with access to a side door and the customary suana - still a rarity in the English holiday market but a feature that adds value and desireability to this quaint holiday let.
Ott - Floors 2 I 81.1 m2 I Entrance Hall I Lounge I Kitchen/Dining Area I Shower Room & WC I Sauna I Terrace 20.5 m2
Ground Floor Plans (clockwise from top left)
- Entrance Hall & Stairs
- Lounge
- Kitchen/Dining
- Shower/WC
- Sauna (with access to Terrace)
Click for larger image
Ott - Floors 2 I 81.1 m2 I Entrance Hall I Kitchen I Dining Area I Lounge I Bedroom I Shower Room & WC I Sauna I Landing I Beds 3 I Family Bathroom I Terrace 24.0 m2
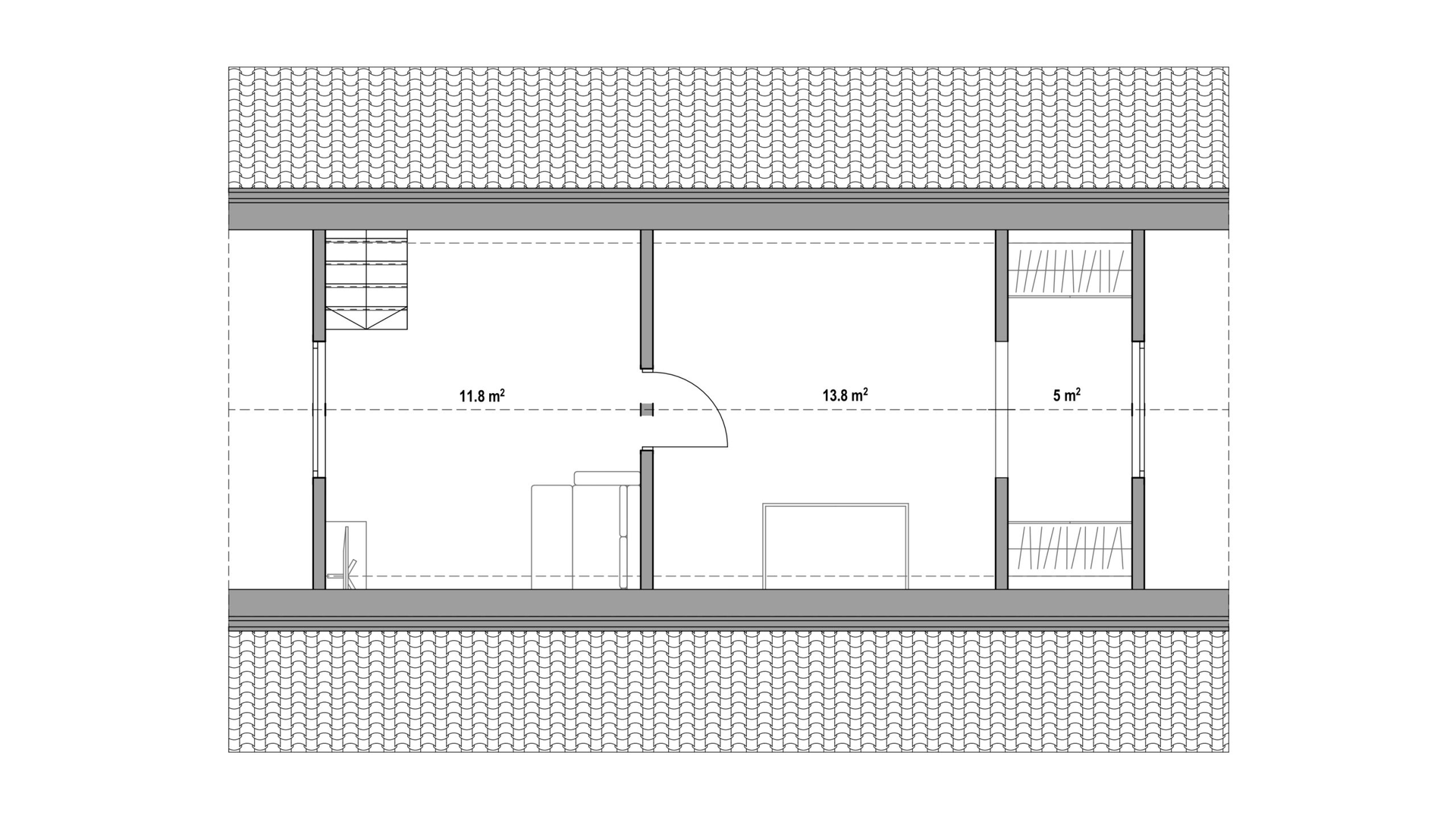
First Floor Plans (clockwise from top left)
- Stairs Up & Lounge Area
- Large Double Bedroom with Walk-In Storage
Click for larger image
Planning, Build, Value, Longevity & the Environment
Most buildings in our portfolio will require planning permission, if you are not familiar with the planning process then it can be something of a minefield and professional help should always be sought, to help you we have produced a handy quide which explains how the process works - click on the icon below.
Our buildings benefit from fast build times once on site - assembly takes between 1 and 5 weeks depending on the size and complexity? Unlike traditional building methods which typically take between 6 to 12 months and are dependant on the weather.
Build costs for traditional building methods range from around £2,700 per square metre to over £3,000 per square metres for a higher spec build - the costs then for a typical 4 bed home, depending on the location, will come out at around £400,000. Your log building once committed to manufacture will be fixed in price, no budgetting for cost over-runs as is the norm of conventional build, and we will be considerably more cost-effective to build, saving you time and money!
Whilst Ritsu make use of modern processing and production methods, the basic design principles are those of log homes that have been in use of hundreds of years - tried and tested then, when we say your building should last for 100 years or more, it's based on experience, not supposition.
Finally, you will be buying a log building that is amongst the most environmentally friendly buildings available, and also, one of the healthiest environments in which to live, work and play.









